ΤΟΠΙΚΑ ΝΕΑ
“Έπεσαν” οι υπογραφές για Κεντρικό Σταθμό λεωφορείων στην Λάρνακα
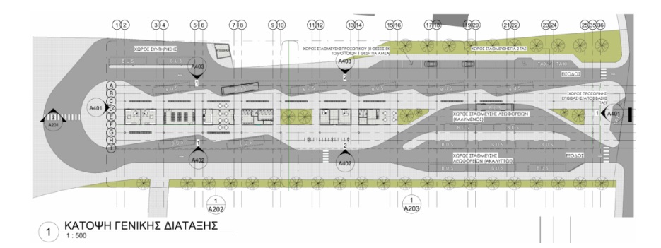
Υπογράφηκε την Παρασκευή στο Υπουργείο Μεταφορών το συμβόλαιο για την κατασκευή του κεντρικού σταθμού λεωφορείων Λάρνακας, αξίας €6,38 εκατ. συν ΦΠΑ.
«Το έργο αποτελεί βασική υποδομή για την αναβάθμιση των δημόσιων μεταφορών και την προώθηση της βιώσιμης αστικής κινητικότητας στην επαρχία Λάρνακας», αναφέρει το Υπουργείο σε ανακοίνωσή του τη Δευτέρα.
Σύμφωνα με την ανακοίνωση, η απόφαση για την κατασκευή του σταθμού προέκυψε μέσα από τη διαδικασία εκπόνησης του Σχεδίου Βιώσιμης Αστικής Κινητικότητας (ΣΒΑΚ) Λάρνακας.
«Η συγκριτική αξιολόγηση εναλλακτικών σεναρίων ανέδειξε ως βέλτιστη επιλογή τον συνδυασμό μέτρων αναβάθμισης των δημόσιων μεταφορών, με τον κεντρικό σταθμό ως βασικό στοιχείο», αναφέρεται.

Προστίθεται ότι η χωροθέτηση σε κρατικό τεμάχιο στην περιοχή της μαρίνας Λάρνακας εξασφαλίζει επαρκή χώρο για την ανάπτυξη υποδομών, ορθολογική οργάνωση της κυκλοφορίας και ενσωμάτωση με τις ευρύτερες αναπτύξεις της περιοχής.
Ο κεντρικός σταθμός λεωφορείων Λάρνακας σχεδιάστηκε για να λειτουργεί ως σύγχρονος κόμβος μετεπιβίβασης που θα εξυπηρετεί ταυτόχρονα αστικές, υπεραστικές και περιφερειακές γραμμές, καθώς και άμεσες συνδέσεις με το Διεθνές Αεροδρόμιο Λάρνακας.
Η υποδομή, σημειώνεται, «στοχεύει στη μείωση της εξάρτησης από το ιδιωτικό αυτοκίνητο και στην επίτευξη των εθνικών και ευρωπαϊκών στόχων βιώσιμης κινητικότητας».
Το συμβόλαιο υπέγραψαν, εκ μέρους της Κυπριακής Δημοκρατίας, ο Αν. Διευθυντής του Τμήματος Δημοσίων Έργων κ. Στέλιος Ζερβός, και, εκ μέρους της εταιρείας Iacovou Brothers (Constructions) Ltd, ο Άλκης Ιακώβου.
Η έναρξη του έργου αναμένεται περί τα μέσα Μαΐου 2026″.
Αναφέρεται πως «η υπογραφή της σύμβασης αποτελεί σημαντικό βήμα για την υλοποίηση ενός έργου υποδομής που βελτιώνει την καθημερινότητα των πολιτών και ενισχύει τις δημόσιες μεταφορές. Ο νέος σταθμός αναμένεται να αποτελέσει βασικό σημείο αναφοράς για τις μετακινήσεις στη Λάρνακα, συμβάλλοντας στη μείωση της κυκλοφοριακής συμφόρησης και στη βελτίωση της ποιότητας ζωής».
Το έργο “υλοποιείται στο πλαίσιο του Προγράμματος Πολιτικής Συνοχής «ΘΑλΕΙΑ 2021-2027» με τη συγχρηματοδότηση της ΕΕ. Η δαπάνη καλύπτεται από τη συγκεντρωτική πρόνοια της Γενικής Διεύθυνσης Ανάπτυξης, με μεταφορά πιστώσεων στο σχετικό άρθρο του Τμήματος Δημοσίων Έργων και οι πληρωμές θα γίνονται από το Τμήμα Δημοσίων Έργων.


27/04/2026