Δελτία Τύπου
GEMABA Constructions & Developers: Νέο οικιστικό έργο ανεξάρτητων κατοικιών στην Αραδίππου
Όλοι ονειρευόμαστε ένα υπέροχο σπίτι, όπου μέσα θα στεγάσουμε τις πιο όμορφες οικογενειακές μας στιγμές!! Για όλους εσάς που ψάχνετε το ιδανικό σπίτι σε μια όμορφη, η εταιρεία Gemaba ενημερώνει για υπο ανέγερση κατοικία στην περιοχή Αραδίππου.
Mε λειτουργικό και μοντέρνο σχεδιασμό η εταιρεία Gemaba Constructions & Developers, με 12 χρόνια εμπειρία στο χώρο των κατασκευών χτίζει τις ιδανικές κατοικίες που θα στεγάσετε την οικογένεια σας. Με βασική αξία την εμπιστοσύνη η εταιρεία συνεχίζει την αναπτυξιακή της πορεία και ανακοινώνει το νέο της έργο στην Αραδίππου.

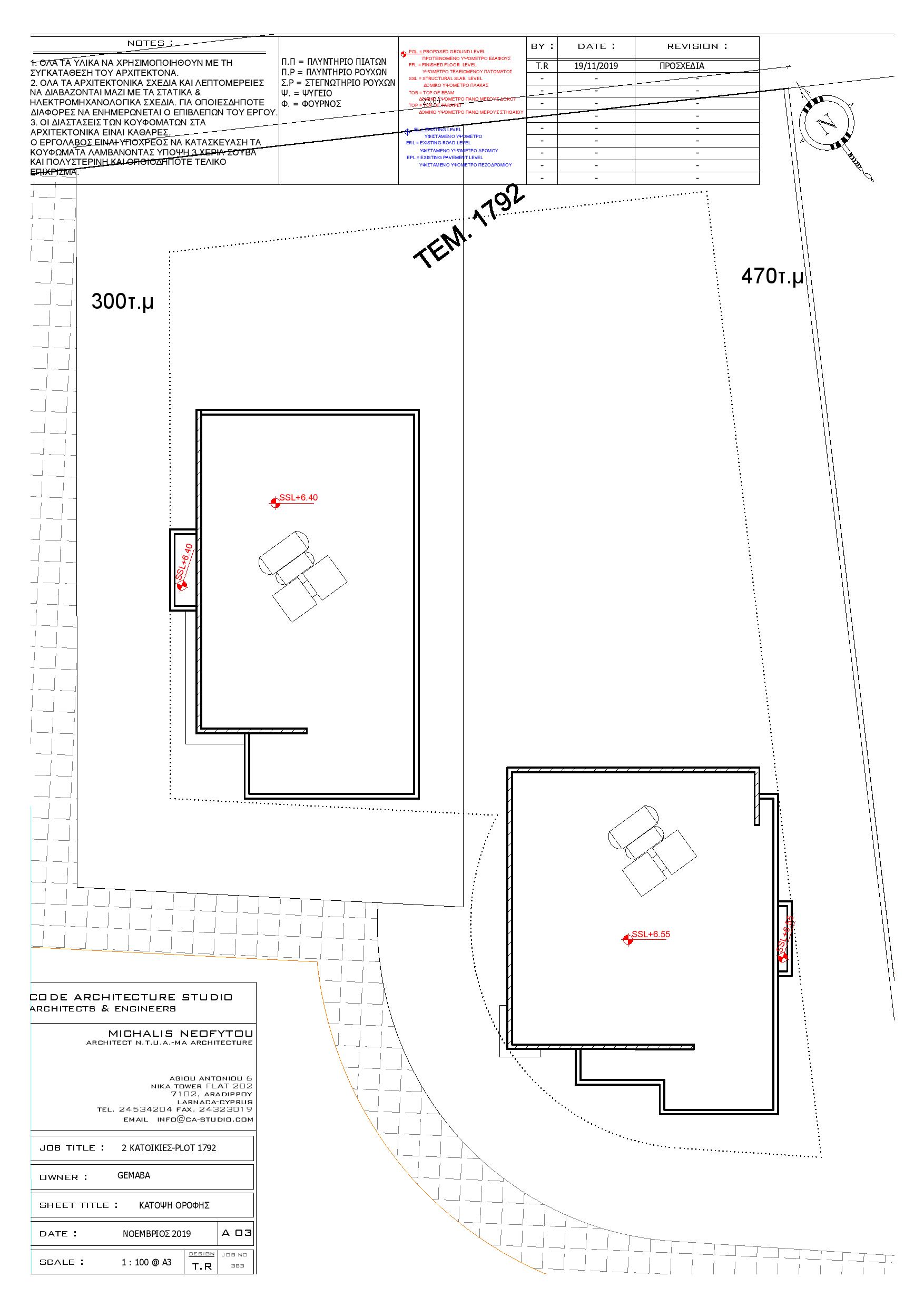
Το νέο έργο της εταιρείας, βρίσκεται σε μια ήσυχη περιοχή της Αραδίππου και προσφέρει άμεση πρόσβαση σε υπηρεσίες όπως φαρμακεία, αρτοποιεία, καφετέρειες, σχολεία, ιατρικές υπηρεσίες κ.α καθώς επίσης και εύκολη πρόσβαση στον αυτοκινητόδρομο Λάρνακας Λευκωσίας. Πρόκειται για οικισιτκό έργο από 2 ανεξάρτητων διόροφων κατοικιών χτισμένα σε οικόπεδα 300 και 470 τετραγωνικά μέτρα.
Δείτε πιο κάτω τις λεπτομέρειες των κατοικιών.
H εταιρεία ενημερώνει ότι η μια κατοικία έχει ήδη πωληθεί ως εκ τούτου διαθέσιμη είναι μόνο η κατοικία που είναι κτισμένη στο οικοπέδο των 470τμ.
Διαθέσιμο
Kατοικία σε οικόπεδο 470m2 στην περιοχή Αραδίππου
▪️Kαλυμμένοι χώροι 180m2
-90 τ.μ ισόγειο
-90 τ.μ 1ος όροφος
-26 τ.μ καλλυμένες βεράντες
-40 τ.μ γκαράζ
€330.000 + ΦΠΑ
Για περισσότερες πληροφορίες επικοινωνήστε στο 99 448995


Πωλήθηκε
Κατοικία σε οικόπεδο 300m2 στην περιοχή της Αραδίππου στην Λάρνακα!
Kαλυμμένοι χώροι 160m2
-82,5 τ.μ ισόγειο
-84 τ.μ 1ος όροφος
-27,5 τ.μ καλλυμένες βεράντες
-22,63 τ.μ γκαράζ
-€250.000 + ΦΠΑ
Για περισσότερες πληροφορίες επικοινωνήστε στο 99 448995

Δείτε πιο κάτω τα 3d και τα αρχιτεκτονικά σχέδια
Νυχτερινή όψη

Ημερίσια όψη

Aρχιτεκτονικά σχέδια

Επίσης η εταιρεία ανακοινώνει ότι έχει πωληθεί και το οικιστικό έργο στην περιοχή Αραδίππου (πίσω από Βεργίνα) το οποίο αποτελείτω από 2 ανεξάρτητες κατοικίες σε οικόπεδα 313τμ το κάθε ένα.
Για πληροφορίες σχετικά με μελλοντικά μας έργα μπορείτε να επικοινωνείτε στο 99 448995


20/01/2020